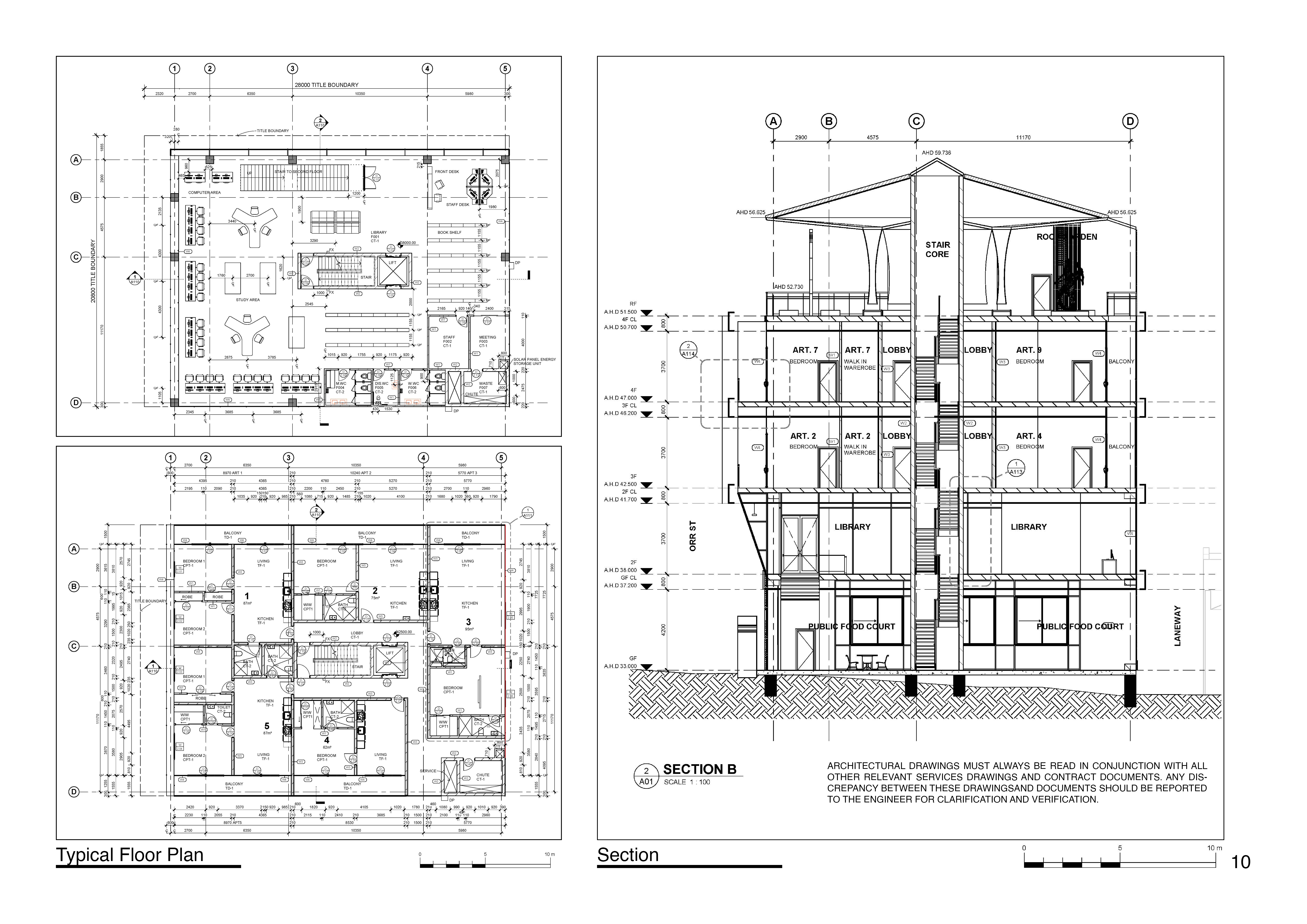
A multi-functional building project
This project is to build a multi-purpose building, and RMIT university is the client. It is a 4-storey building and rooftop to be developed for use. The lot size is around 300m². The building should concern with sustainable design and comply with all Australian regulations, including accessibility. Building occupancy is to include commercial, educational and one floor of residential.



